kaya Aurora # 1
kaya Aurora # 1 Price 420.000,= USD
Spacious Family Home with Guest Apartment for Sale
Discover your ideal home just minutes from the beach and all essential amenities.
Main House Highlights
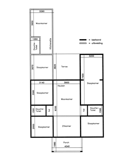
This well-designed residence offers a comfortable and functional layout (see floor plan) that includes:
4 Bedrooms 2 Hallways 2 Shower & Toilet Rooms
1 Sitting Room 1 Living Room 1 Kitchen 1 Porch & 1 Terrace
Total built area: 100 m²
Outdoor living space (porch & terrace): 23 m² — perfect for relaxing or entertaining outdoors.
Bonus: Fully Finished Guest Apartment
A newly completed 32 m² apartment, perfect for guests or rental income, featuring:
1 Bedroom 1 Shower & Toilet Room 1 Living Room 1 Kitchenette
Just like the main house, the apartment is solidly built with modern finishes and ready to move in.
Prime Location
Located in a convenient, sought-after area close to:
Supermarkets Restaurants Schools
Just 10 minutes from the beach and Kralendijk's vibrant boulevard
Whether you're looking for a permanent home, vacation getaway, or investment property, this is a unique opportunity not to be missed.
Contact Us Today
Ready to schedule a viewing or want more information?
We’re happy to help—get in touch now!









