Beautiful Bonairian House in Antriol - An Ideal Residential Dream!
Welcome to this charming Bonairian house, situated in the tranquil and cozy Antriol, at Kaya Dr. J.G. Hernández # 23. This property, nestled in a residential area, offers a unique opportunity to experience Bonairian life in a comfortable and well-maintained home.
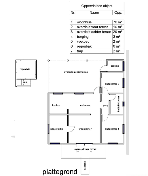
Property Features:
Covered Front Terrace: Step inside and enjoy the serene atmosphere on the covered front terrace, perfect for relaxing evenings or entertaining guests.
Spacious Living Room: A cozy living room welcomes you with warmth and comfort, ideal for unwinding after a long day.
Three Bedrooms: The property features three comfortable bedrooms, perfect for the whole family or as extra space for guests.
Dining Room & Kitchen: The dining room and kitchen from the heart of the home, where delightful meals are prepared and shared with loved ones.
Bathroom Facility: Easy access to a bathroom facility for your daily needs.
Connecting Hallway: A well-thought-out connecting hallway links the various spaces of the property for smooth flow.
Storage Room: A convenient storage room provides extra space for all your essentials.
Covered Back Terrace: Enjoy the outdoors on the covered back terrace, perfect for al fresco dining or quiet moments.
Detached Rainwater Tank: With a detached rainwater tank, you are always prepared for the natural elements.
Other Details:
Built Area: The property covers a built area of 112m², perfectly tailored for comfortable living.
Leasehold Land: Situated on a leasehold plot of 412m², this property offers a stable foundation for long-term enjoyment.
This beautiful Bonairian house awaits its new owner to embrace its warmth and charm. With an asking price of only $290,000, this property represents an excellent investment opportunity in the heart of Bonaire.
Do not hesitate to contact us for more information or to arrange a viewing. This is an opportunity you do not want to miss to fulfill your dream of living in Bonaire!
For more info contact Mi Kas Realty at mikasrealty@gmail.com
Or WhatsApp +599 7962756


